一鸣宽城-中式风格-98㎡
更新于 1/1/1900 12:00:00 AM
分享
案例分享
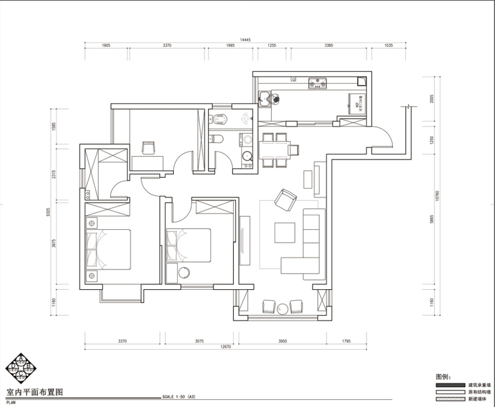
户型图
从户型图上看整体的户型设计规整有序,规划的设计是三室两厅一厨一卫的设计,户型的格局非常方正,入户有个玄关,各个房间的采光及其通风都是非常不错的,虽然面积不大但是该有的格局设计都不差。

客厅
客厅设计上一眼望去主要以原木色的家具搭配为主,无论是沙发还是桌椅都是原木色的,非常有娴静和温柔的氛围感,在背景装饰墙面统一采用素色的设计,方便后期增加装饰物品,具有复古韵味的灯饰以装饰设计搭配不会很刺眼。

餐厅
餐厅设计上简中式的餐桌和椅凳显得特别温馨感,顶上是灯笼式吊灯家伙是哪个墙面装饰的折扇,都很好的诠释中式风格独特的温馨感,除了灯笼式的吊灯之外还设计了筒灯更显空间亮度和氛围感。

客厅墙
客厅的背景墙是我觉得看起来简单但实际上是非常好看的设计,电视背景墙采用的是带少量纹路设计的背景墙,两边中式元素常用的条形勾勒框架的设计,找底部再装饰点插花或者绿植就更好了,木质的电视柜藏八露二设计的刚刚好。

走廊
走廊通往各个功能区同时走廊也隔断餐厅和客厅的使用区域,让每个空间都呈现独立合格的设计,尽头处放着一幅落地挂画,深色的图案悠远深长十分美观,顶面上装饰吸顶灯四周还有一排吸顶灯照明,晚上老人起夜也方便。

玄关
入口处的狭窄走廊正好可以设计一个玄关,靠墙内嵌的顶天立地柜设计中间和底部留空,回家可以放置杂物和随时换鞋,墙面装饰一些装饰挂画来点缀,入户的玄关就能看到餐厅情况,下完班回家就可以看见妻子做的饭菜别提有多美了。






