130平三居新中式风格丨锦蓉佳苑装修案例
更新于 1/1/1900 12:00:00 AM
分享
案例分享
该案例是总面积为130平,客户长期在外地工作,此处住宅近5年时间都只是短期度假居住,退休后会作为一个长居住处,另外客户比较喜欢中式的家具,因此我们把装饰风格定义为新中式。客户对生活品质有很高的要求,而对装饰性的造型不是特别感冒,因此我们在设计的过程主要考虑的是客户的生活方式,在造型上尽量简洁。


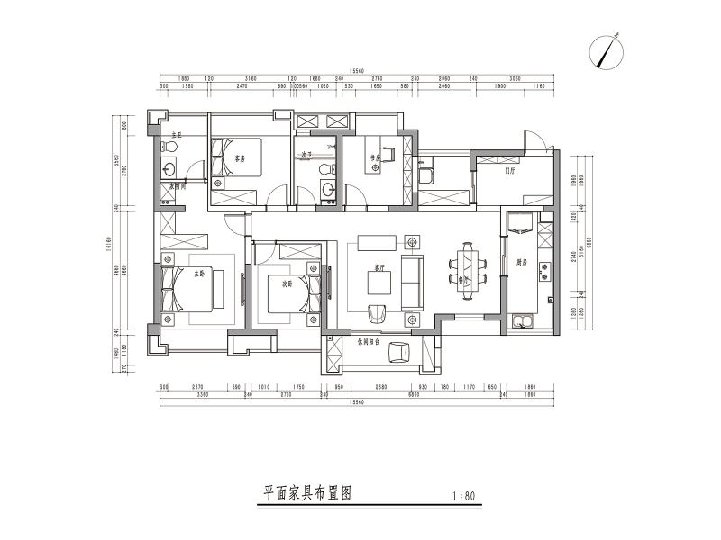
原始户型图和平面方案设计图

做了灰色地面,配搭硬包墙面,墙面和顶面的实木线条轻微的勾勒出中式的韵味。



因为居住的人员比较少,稍微减小了主卫的空间,扩大为衣帽间的收纳功能,墙面的木制墙板和实木线条装饰点缀出中式韵味





