90㎡北欧原木风,此时此地,把森林种在家里—玄关新玩法
案例分享
前言 一家三口俩人一狗男主人:30外表强壮但心思细腻;从小热爱厨房工作,做得一手好饭,经常创作独家菜谱,希望能拥有一个可以施展厨艺的高科技多功能厨房;幽默感十足,笑点极低,喜欢看电影听音乐打游戏,客厅需要大投影和音响系统;喜欢喝茶,希望能有专门喝茶盘串修身养性的个人空间;喜欢家是简单、明亮、通透、舒服的。女主人:30外表温柔偶尔也发点脾气,没啥特别的爱好,喜欢窝在家里看剧,希望客厅有舒服的沙发和大地毯;喜欢北欧风格带点儿现代感,温柔简单的颜色和线条,不喜欢太复杂的图案;希望家里可以尽量智能化。萌宠:大郎,1岁,男柯基,矮胖圆;喜欢嗑各种凳子腿,拖鞋等,希望家具是结实的;喜欢晒太阳、满屋跑,希望家里能有很大的空间用来撒欢;现在经常将玩具弄到沙发底下够不到很着急,希望新家的家具最好都能落地,不要和地面有空隙,或者和地面的距离较大;偶尔乱尿,容易打扫很重要大郎爹妈是6岁相识的小学同学,革命情谊深厚,默契十足,喜欢的东西90%一致,剩下的10%也尊重彼此的想法,希望可以和设计师一起打造出最适合她们的舒适家。
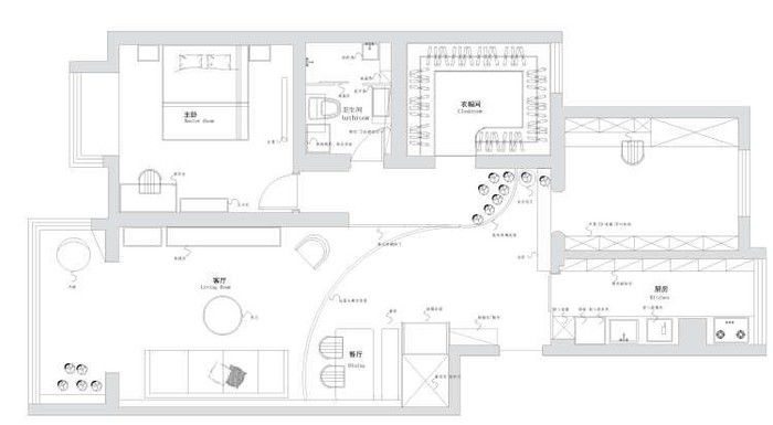
户型图

原始结构户型图优点:【1】客厅、主卧室采光好。缺点:【1】餐厅没有合适的位置.【2】卧室门正对着入户门。【3】从小热爱厨房工作的1米9高的靳先生来说,厨房完全施展不开精湛的厨艺。

格局改造的重点:【1】首先改造卧室门正对入户门的问题,把卧室门向左平移,完美的避开入户门,并为做入户景观预埋伏笔。【2】扩大书房空间的门洞,使原来比较闷的空间变得视野开阔,并和外部公共空间融合。【3】厨房的门洞的位置拆除,增加空间的采光效果和空气对流,在视觉上扩大空间的通透性。

这就是规划之后的布局图啦【1】首先是入户的景观设计,把原来的卧室门向左平移1500mm预留出景观房的位置,直径2000mm长的超大景观房回家后的第一眼就是清新的大自然。【2】餐厅和储物柜玄关鞋柜的结合,不仅拉近了餐厅和客厅的距离感,并且很巧妙的把原来很难利用的死角做成储物柜,增加储物空间。【3】厨房门洞拆除之后通透了很多,一字型的厨房的利用率比较低,储物空间完全满足不了厨房储物的需求。厨房在预留过道940mm宽之后在橱柜对面的墙做了250mm进深的地柜和吊柜,很大程度上增加储物空间,并且吊地柜之间安装了一面墙的镜子,视觉上也扩宽了空间,并增加舒适度。
玄关

在回家后的第一道风景线上设计师很是费尽心思做出最美最不一样的风景,直径2000mm的曲面玻璃通透又大气、温和和书房、衣帽间的拱形门洞相互融合,给人一种原始的质朴感,搭配上生机勃勃的绿植,仿佛置身于天然的空间之中。弧形玻璃屛的左边便是和主卧室、卫生间、衣帽间的软性的空间划分。在进入书房空间的地面方做了云雾石材配合灯带的设计空间的层次感更加强。花瓣的小吊灯为空间增加了温度感,都芳DF-3-3802p浅紫色的乳胶漆为白色的墙面带来活泼感。

‘今天你真好看’,此时此地愿你每天都好看。

水泥质感的射灯发出来的光,好像太阳一样温暖。
客厅

玄关看向客厅,墙面简单的白色搭配都芳DF-3-3802p浅紫色的乳胶漆,给空间带来一抹温馨的优雅感,家具的搭配选用浅灰、白、胡桃木色,点缀紫色、黄色,空间活泼又不失稳重。电视墙顶面做了隐藏藏投影幕布的暗槽,在平时不需要观看投影幕布时就可以很完美的把它隐身起来啦!

这里是客厅看向餐厅和玄关的视角啦!空间宽敞明亮,玄关的美景尽收眼底,坐在客厅里也能与书房、厨房、餐厅的人互动。

沙发后面的半高储物柜高1000mm,进深200mm,延伸到餐厅的空间,半高储物柜沙发后面的空间基本上利用不到,所以做了架柜门的设计,能开启利用的空间在沙发两侧和餐厅的位置,台面上的位置刚好容纳下投影仪的位置,其他台面的位置就可以利用起来作为艺术区的展示。

投影仪很完美的能够投影到对面的投影幕布上面,在曲美订购的沙发,后面的台面也成为了最佳的艺术角。

网购多功能的小茶几,黑色的圆盘下面暗藏机关哦,网购的定制地毯很成功,等了一个月的时间也是值得的。
餐厅

玄关鞋柜1200mm长很巧妙的和嵌入冰箱结合。玄关鞋柜上的衣帽镜反射出景观区刚好作为梳妆的背景。餐桌1500mm长也很巧妙的隐藏在了储物柜的一侧。

餐厅附近的冰箱很方便的取拿冰箱里的零食哦!

餐凳的后面不单单简单的冰箱柜,在冰箱柜的后面暗藏着玄机,一个超级大号的储物柜,在柜门上半部分采用长虹玻璃既能达到消隐的效果又能实现美观感。冰箱的侧面做了假柜门和里侧的柜门融合,柜门的设计提取屏风的元素,也刚好作为背景墙使用,实用和美观兼具!

客厅的半高储物柜延伸到餐厅。

这是我们的毕业餐哦!

厨房

在厨房也能欣赏到最美的风景,厨房做了一整面墙的钛镁合金推拉门,防潮又能达到实木的效果。

厨房门洞拆除之后通透了很多,一字型的厨房的利用率比较低,储物空间完全满足不了厨房储物的需求。厨房在预留过道940mm宽之后在橱柜对面的墙做了250mm进深的地柜和吊柜,很大程度上增加储物空间,并且吊地柜之间安装了一面墙的镜子,视觉上也扩宽了空间,并增加舒适度。

厨房还做了嵌入洗衣机、烤箱、洗碗机的设计,小空间大容纳!

书房

透过景观房看到的书房。书房弧形的门洞和景观形成呼应。书房门洞宽850mm
书房看向客厅的视角,玄关的顶部做了错层的设计,在视觉上增加空间的高度。

书房是男主人最爱的空间啦,书房地面做了全屋地台的设计,地台高180mm,在家里来客人时摇身一变就成为了客房,平时就是男主人喝茶的地方。顶面网购中灰色水泥漆和水泥吊灯、射灯。 进入书房的左边是男主人平时上网的地方,里侧是储物柜的设计,茶室/客房的的被子、褥子和其他的物品就可以收纳到这个储物柜当中,储物柜1800mm*600mm。储物柜摈弃了柜门,设计成黄麻半通透的纱帘,书房更加通透了。

男主人的书桌、茶台区。书桌长1800mm*高750mm*宽600mm。茶桌1500mm长
卧室

主卧室没有衣柜还是比较宽敞的,墙面1500mm宽都芳DF-3-3802p浅紫色的乳胶漆。

主卧室做了暗嵌暗嵌窗帘轨道的设计。超大的飘窗,三面白橡木包口。姜黄色的绒布窗帘搭配在卧室很有质感哦。梳妆台1200mm。

斗柜细节,网购斗柜,灰色哑光的小把手,橙色的斗柜,让细节更有质感。
1200mm*450mm的梳妆台,梳妆台正上方搭配水晶通透质感的吊灯,解决光线灰暗的问题,既美观又实用,梳妆台右侧的抽屉解决了小件物品的收纳。


主卧室夜晚的感觉,饱和度高明度低色彩的搭配很舒服哦!
衣帽间 衣帽间,白色弧形的门洞宽850mm。大气又有设计感很特别。搭配特别定制的半帘“今天你真好看”地面鱼骨拼木地板。

衣帽间的衣帽柜选了一面墙的镜子柜门设计扩大空间感也可以美美哒的在衣帽间里精心梳妆打扮。

衣柜把手选用了1500mm长的黑色极细门把手,搭配纯白色衣柜,清新大气。

衣柜里的内部结构设计,也是我们设计师根据屋主的每季的衣物数量和生活习惯进行设计,配合厂家定制,的完美呈现。

衣帽间家具定制图
卫生间

网购粉色的本土创造的圆形洗手盆,浴室柜宽800mm*400mm。

智能马桶的右侧是狗狗的厕所和打扫工具的收纳位置哦!





